


El término entresuelo
describe el espacio de un edificio situado entre la planta baja y la planta principal. Pero la palabra parece evocar algo distinto. Parece que está más cerca de otros términos ambivalentes, como las puertas entreabiertas. O los entretiempos.
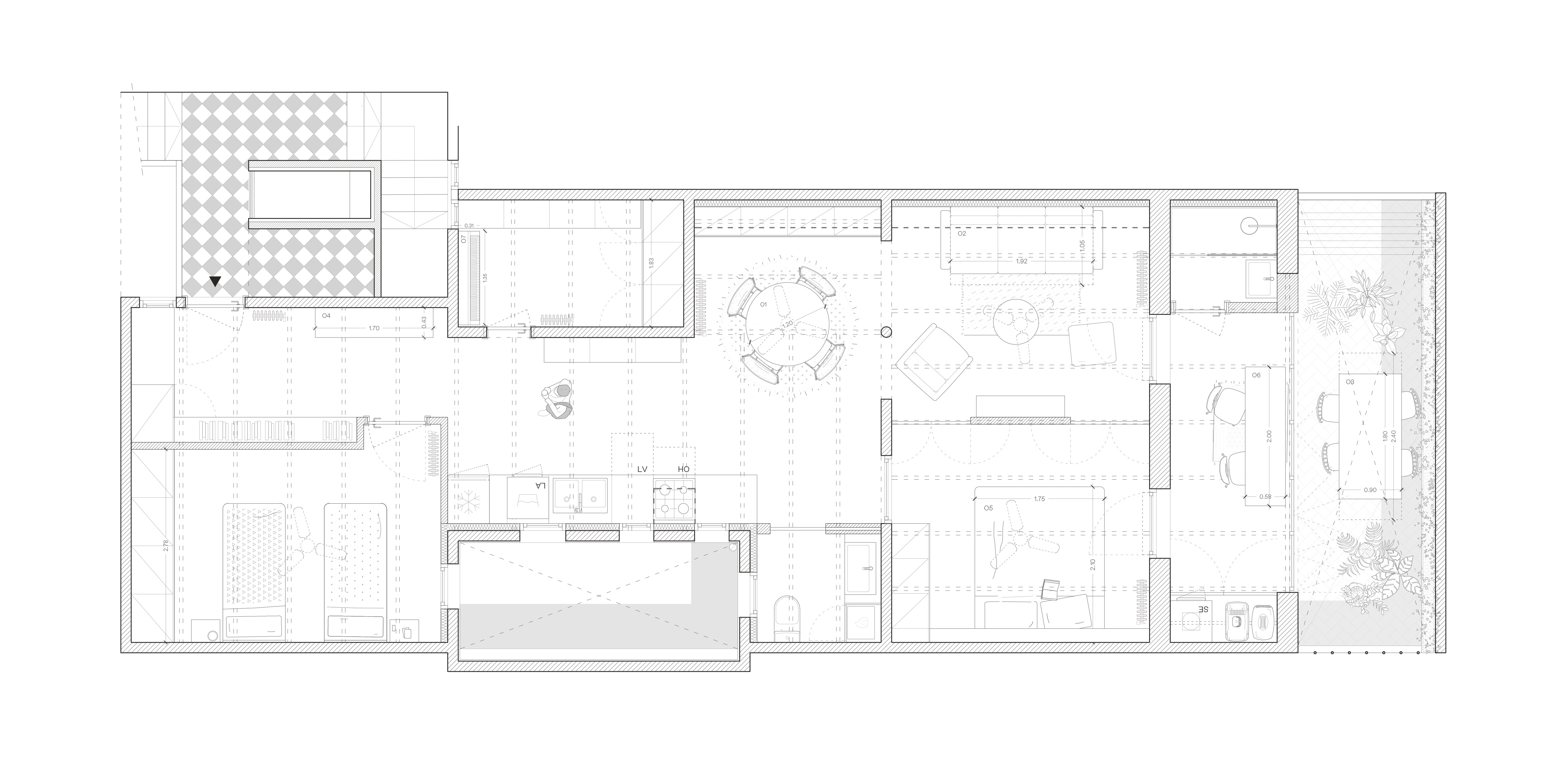
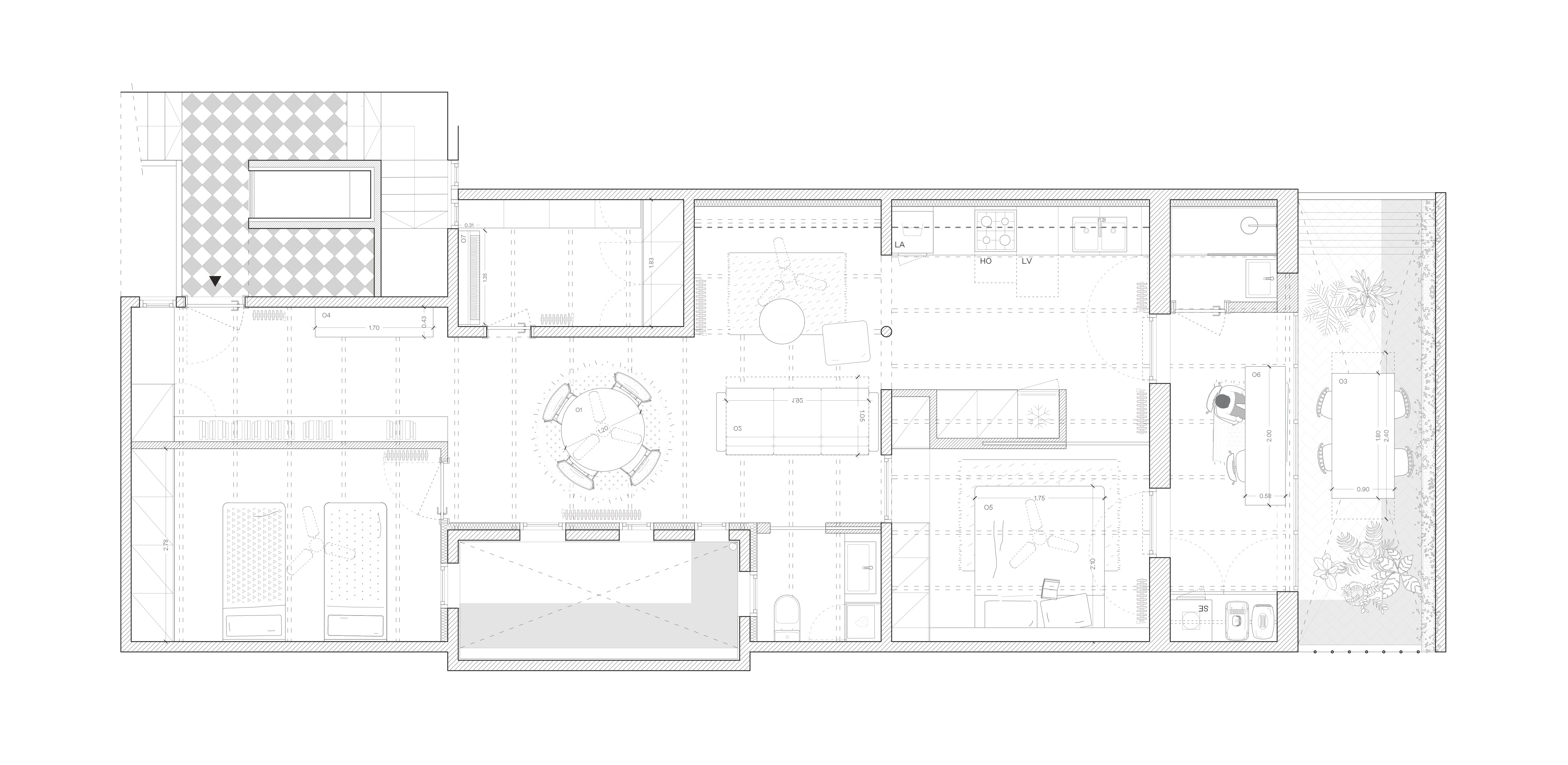
Históricamente, el entresuelo aparece acompañando a la planta principal. Alejándola de la calle le otorgaba mayor altura y una supuesta distinción. A partir de esta planta el edificio acostumbraba a presentarse tal y como es. Pero de no haber planta principal, el entresuelo desaparece y pasa sencillamente a ser un ordinario primer piso. Aun así, el término no es ‘preprincipal’, ni tampoco ‘bajoprincipal’. Paradójicamente a esta relación de dependencia con el piso superior, los entresuelos tienen más relación con las plantas bajas que con las principales. Por ejemplo, suelen compartir con ellas importantes cuestiones estructurales. También acostumbraban a complementar la actividad comercial de estas plantas bajas. Y normalmente gozan de una terraza que es, precisamente, la cubierta del piso inferior. Pese a todo, tampoco se llamaron ‘sobrebajos’. Como sí ocurre con los sobreáticos. Si no que insisten en eso. En ser un entresuelo. Uno podría pensar que un entresuelo es algo parecido a la planta 7’5 que aparece en ‘Cómo ser John Malkovich’. Una planta bajita por la que accedes, digamos, al interior de algo mayor.
describe el espacio de un edificio situado entre la planta baja y la planta principal. Pero la palabra parece evocar algo distinto. Parece que está más cerca de otros términos ambivalentes, como las puertas entreabiertas. O los entretiempos.
Históricamente, el entresuelo aparece acompañando a la planta principal. Alejándola de la calle le otorgaba mayor altura y una supuesta distinción. A partir de esta planta el edificio acostumbraba a presentarse tal y como es. Pero de no haber planta principal, el entresuelo desaparece y pasa sencillamente a ser un ordinario primer piso. Aun así, el término no es ‘preprincipal’, ni tampoco ‘bajoprincipal’. Paradójicamente a esta relación de dependencia con el piso superior, los entresuelos tienen más relación con las plantas bajas que con las principales. Por ejemplo, suelen compartir con ellas importantes cuestiones estructurales. También acostumbraban a complementar la actividad comercial de estas plantas bajas. Y normalmente gozan de una terraza que es, precisamente, la cubierta del piso inferior. Pese a todo, tampoco se llamaron ‘sobrebajos’. Como sí ocurre con los sobreáticos. Si no que insisten en eso. En ser un entresuelo. Uno podría pensar que un entresuelo es algo parecido a la planta 7’5 que aparece en ‘Cómo ser John Malkovich’. Una planta bajita por la que accedes, digamos, al interior de algo mayor.

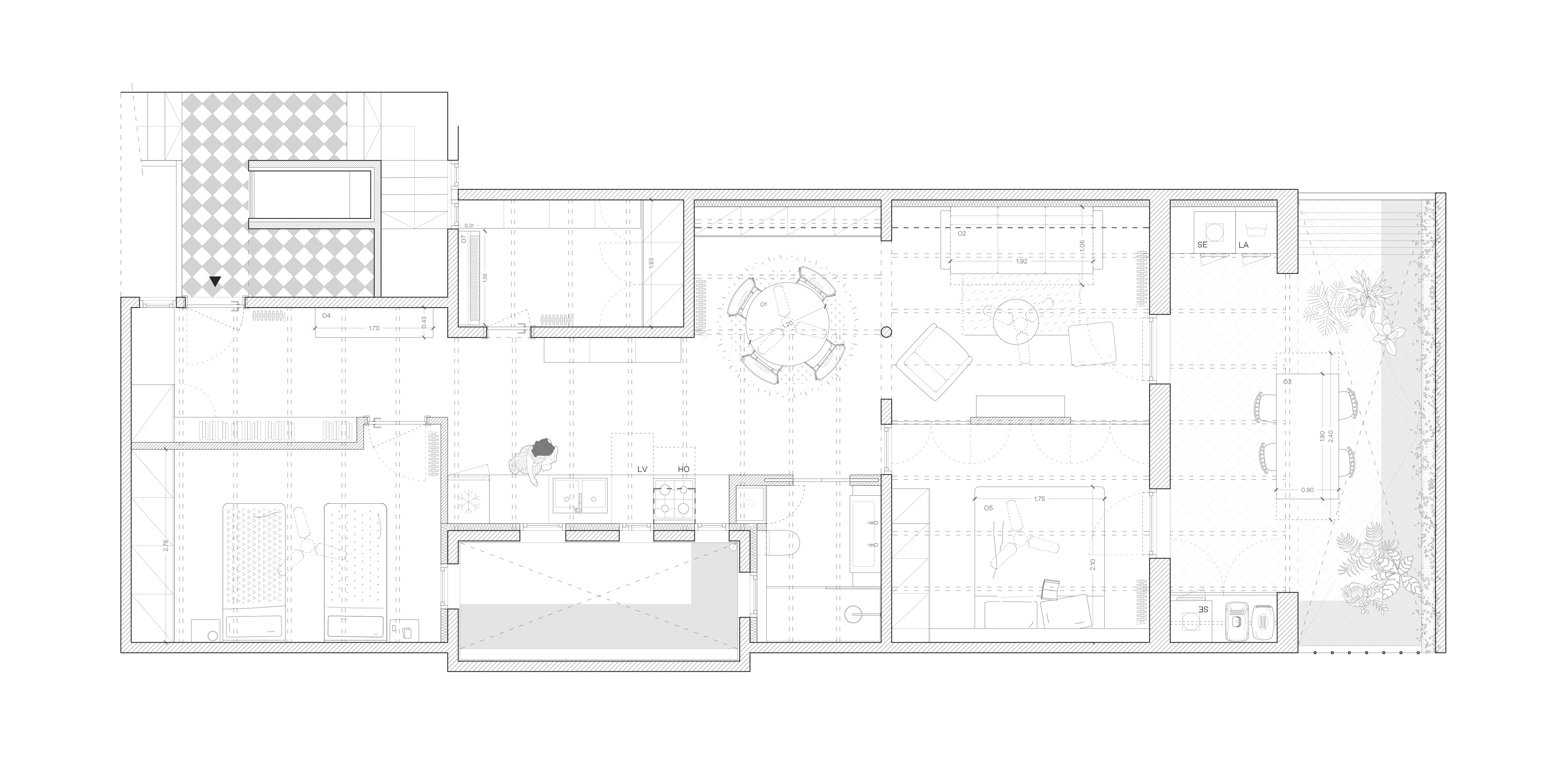
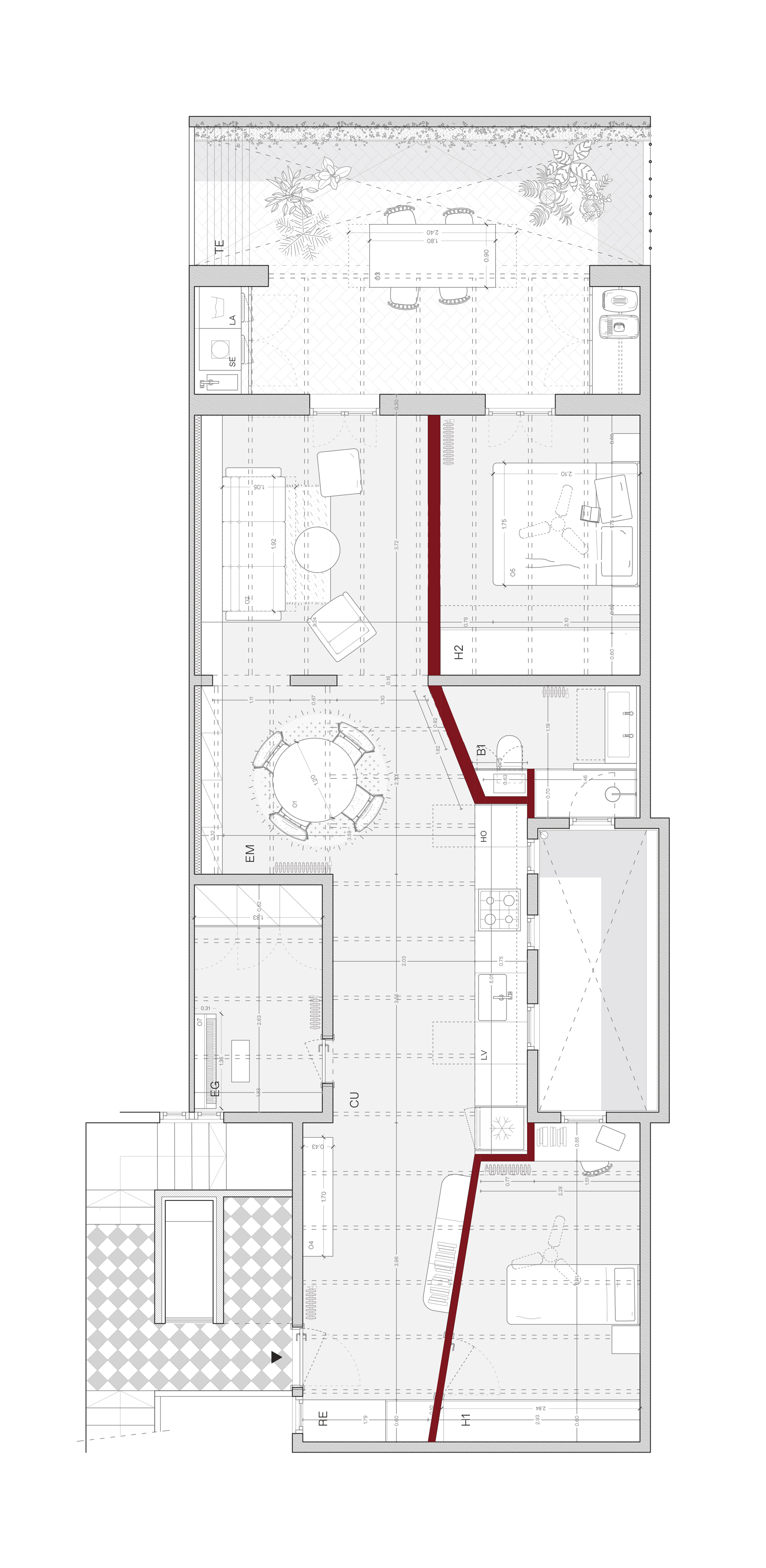
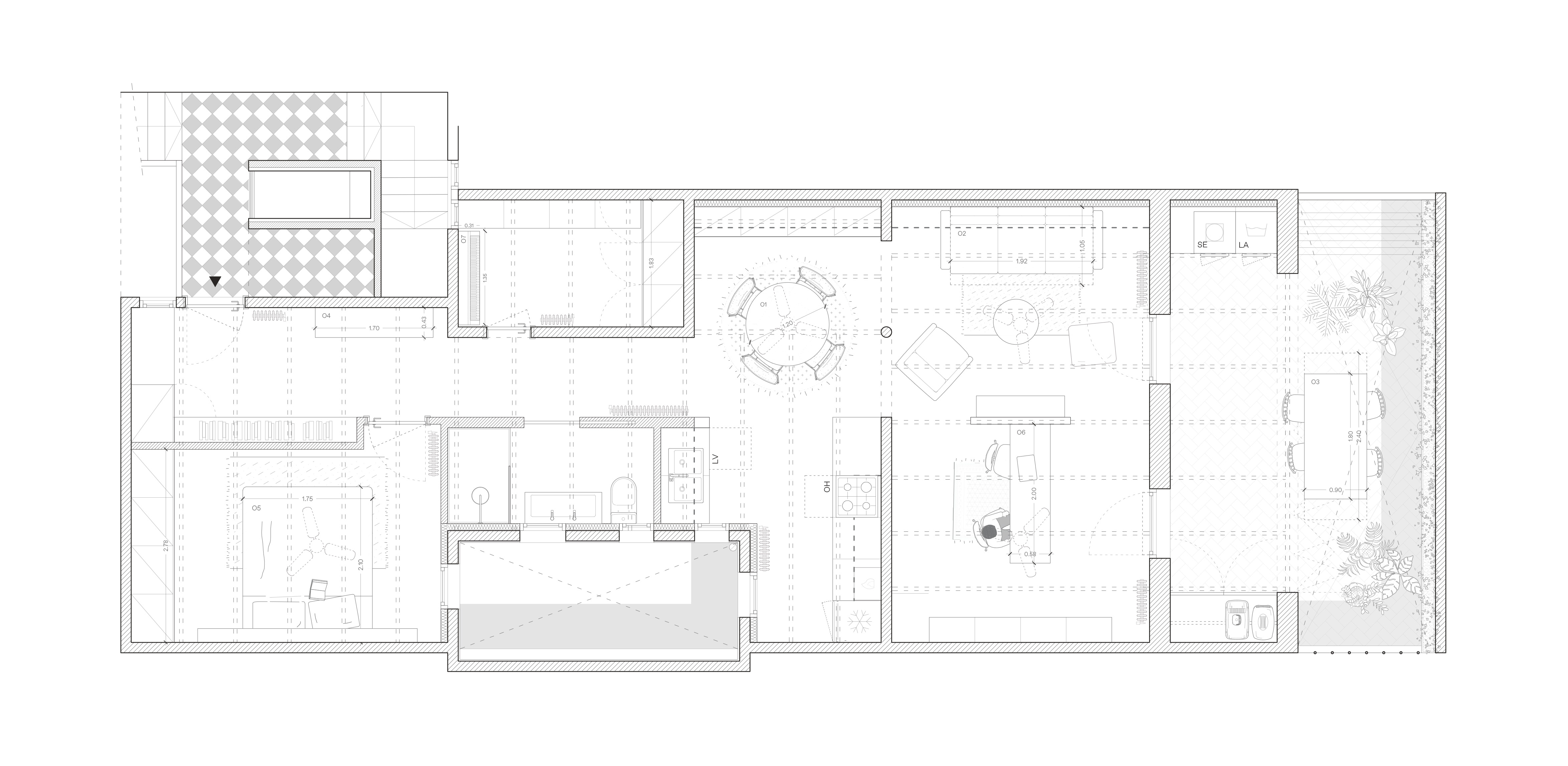
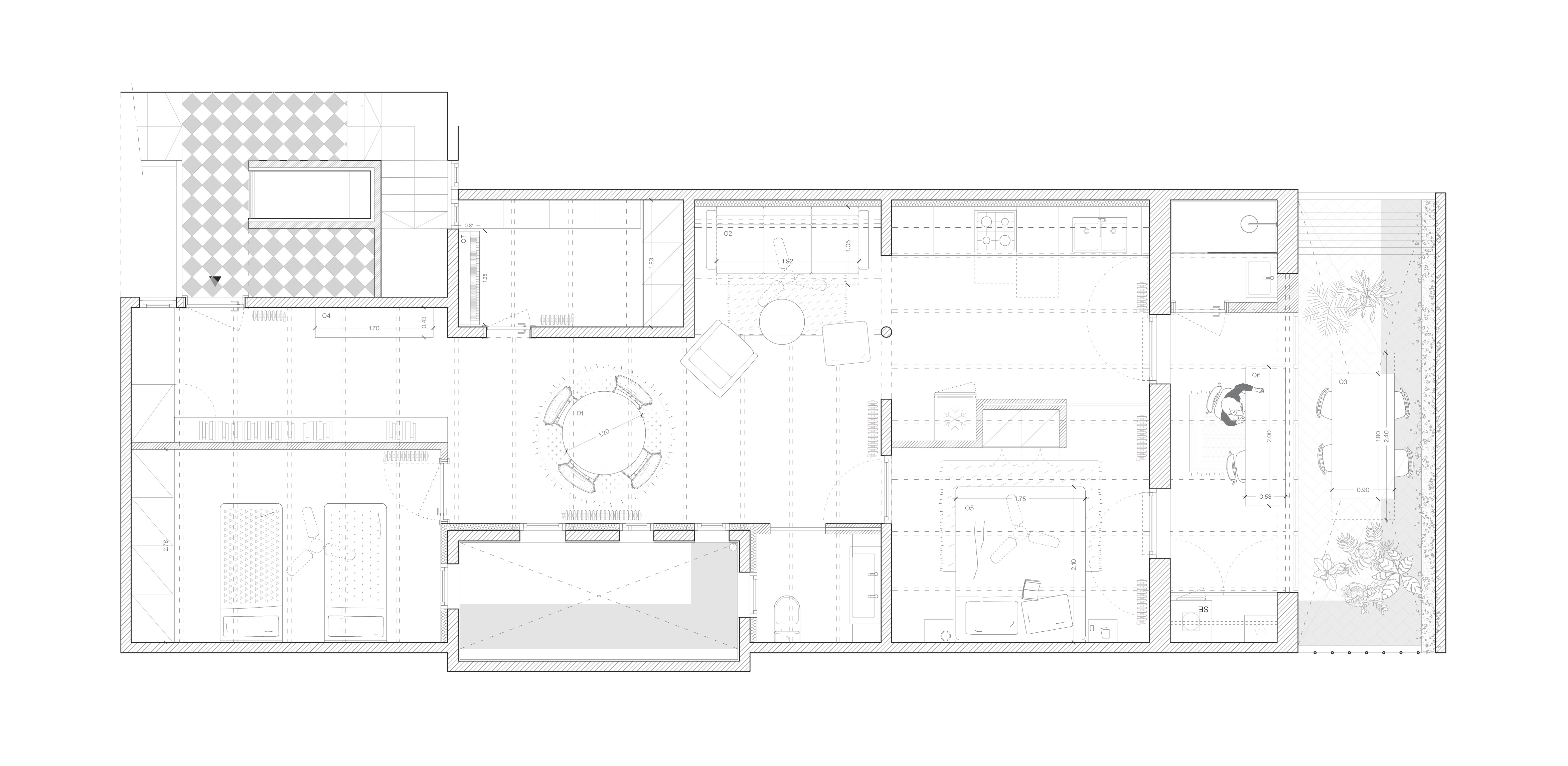
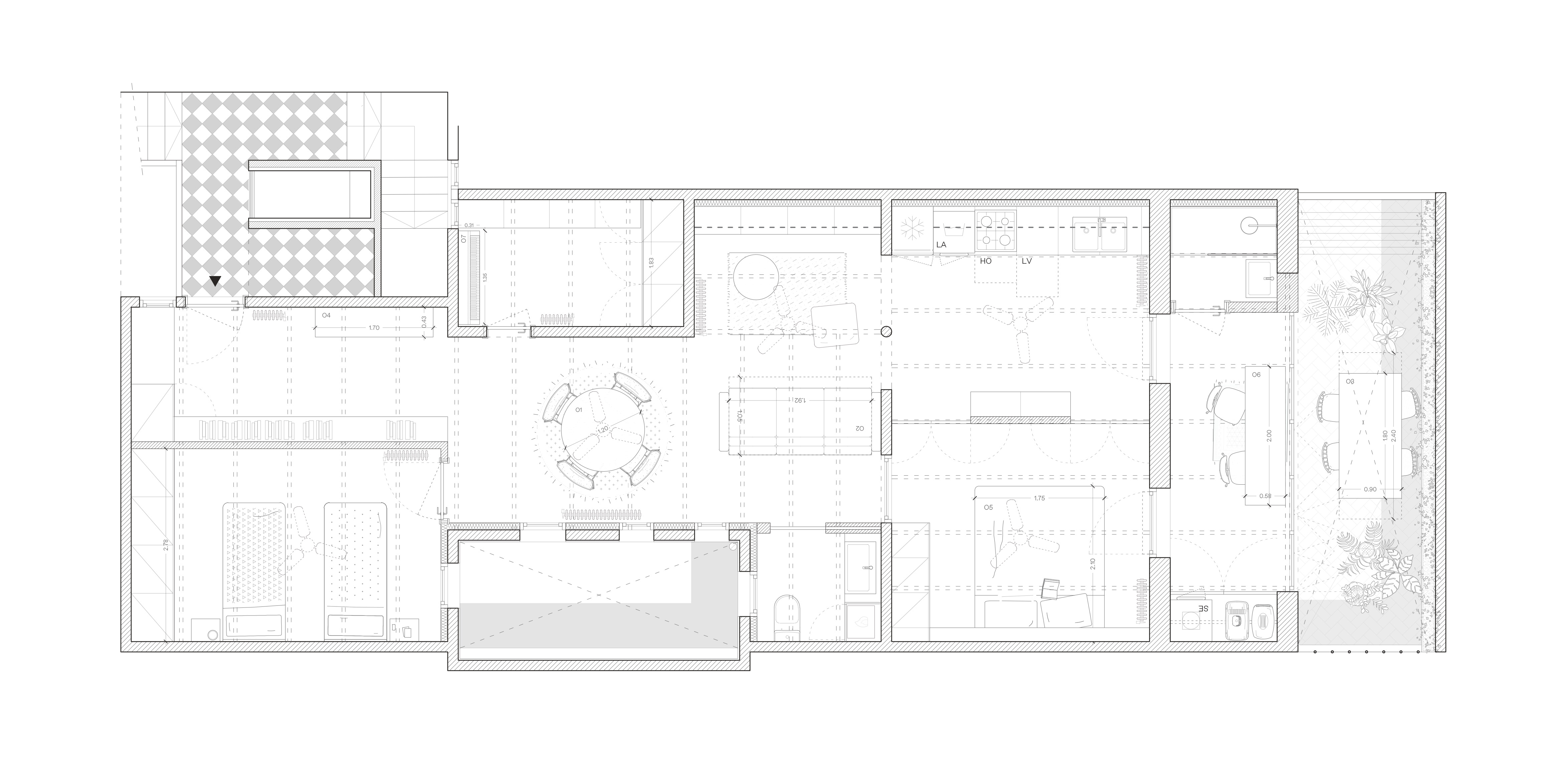
Berta
y Marc querían adaptar este entresuelo a sus necesidades. Estaban esperando que
naciera Teo. En la lista de deseos para su futura vivienda había las cuestiones
habituales. Pero también se extrañaba la falta de amplitud y de iluminación
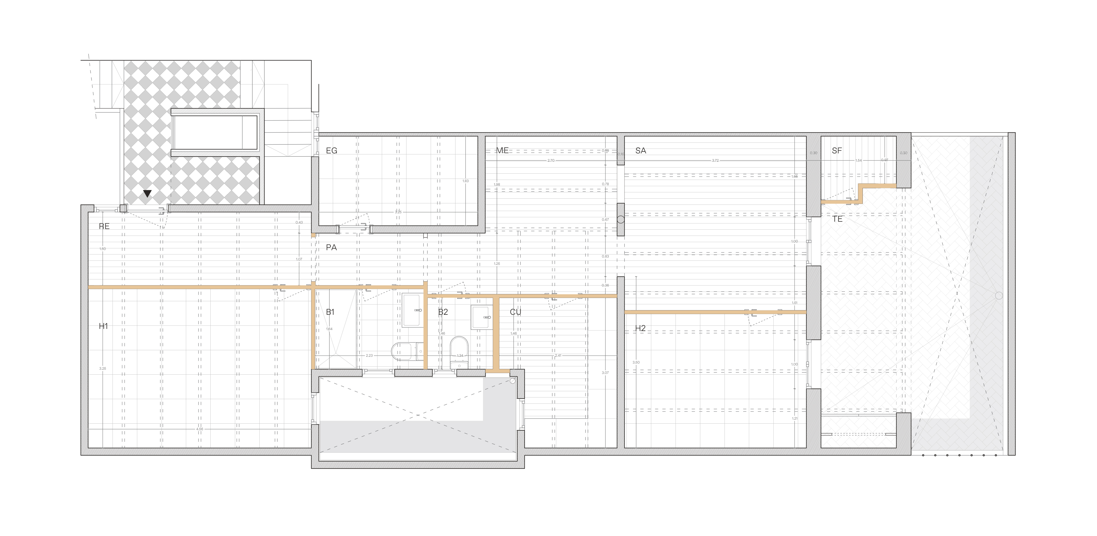
natural. Se propuso un apeo estructural en una de las paredes de carga. Un apeo
prudente que favoreciera la entrada de luz hacia la zona más oscura de la
vivienda. También la geometría de las nuevas paredes podía favorecer la
iluminación, dirigiéndose hacia el patio interior y recuperando una de las ventanas
originales, que en algún momento de su historia fue tristemente tapiada. El
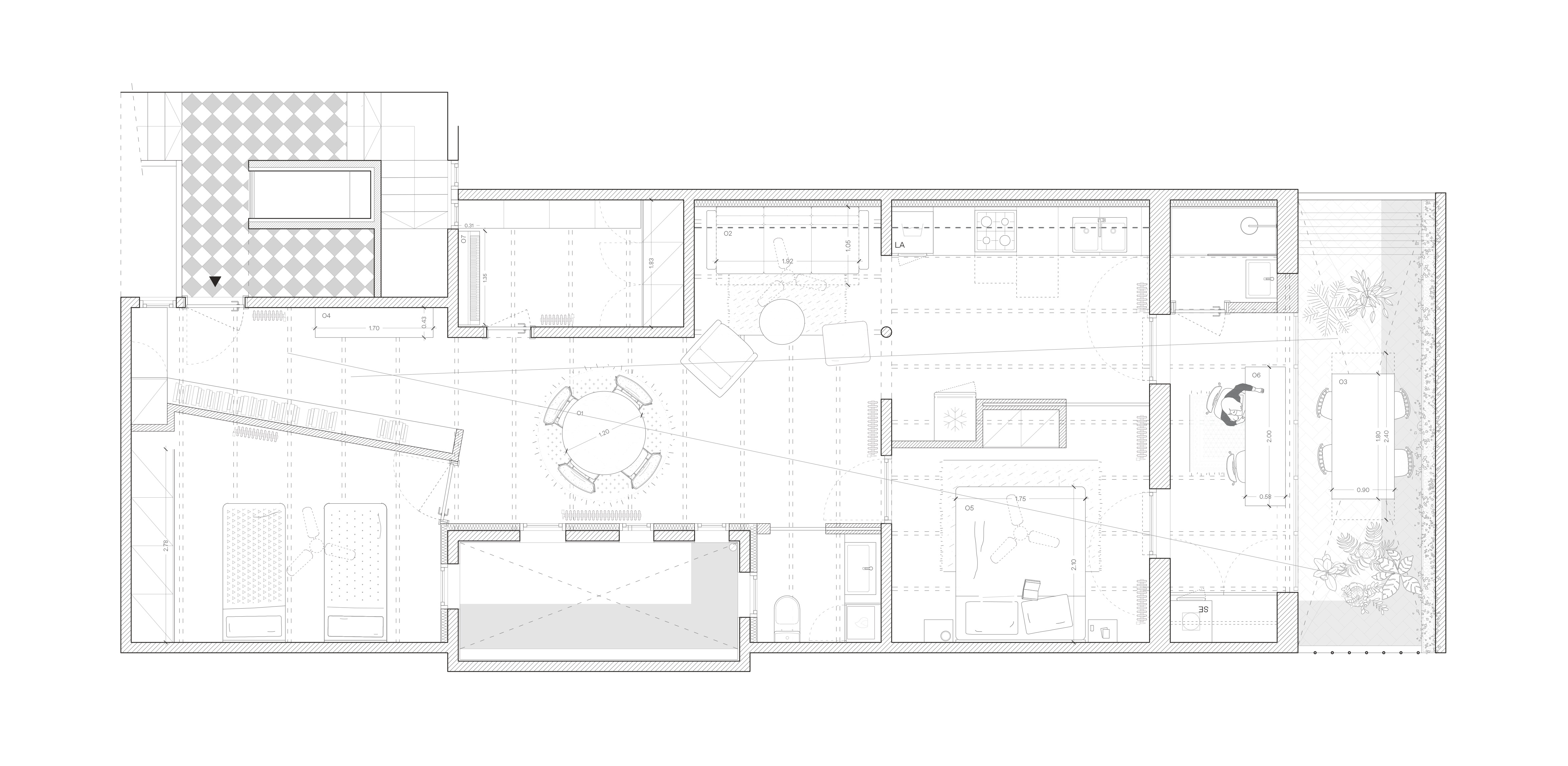
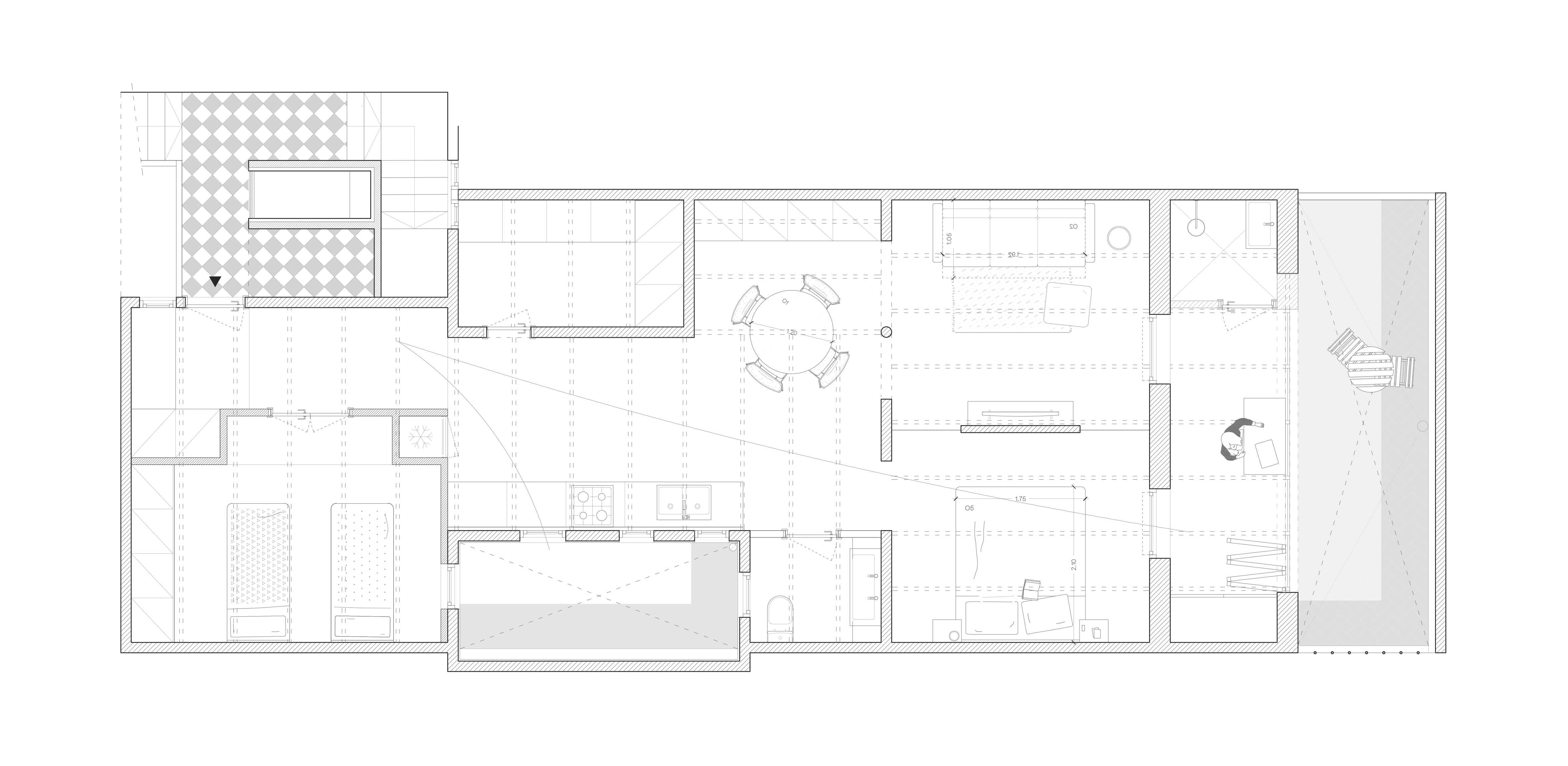
pavimento claro, realizado con un revestimiento mineral continuo y libre de
compuestos volátiles, contribuye a la sensación de amplitud. Una solución de suelo que
también debía asumir los posibles movimientos de una finca centenaria como ésta.

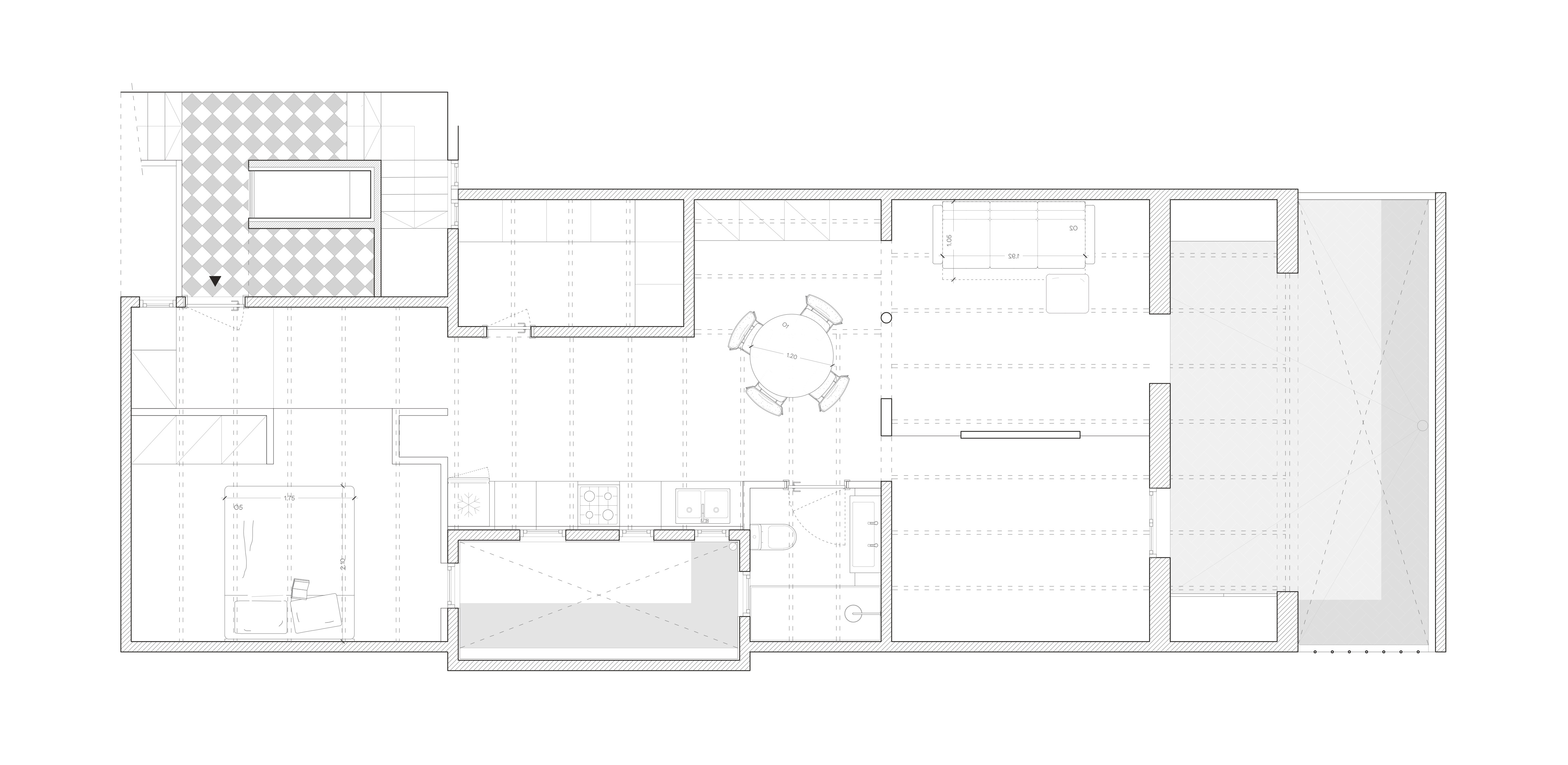
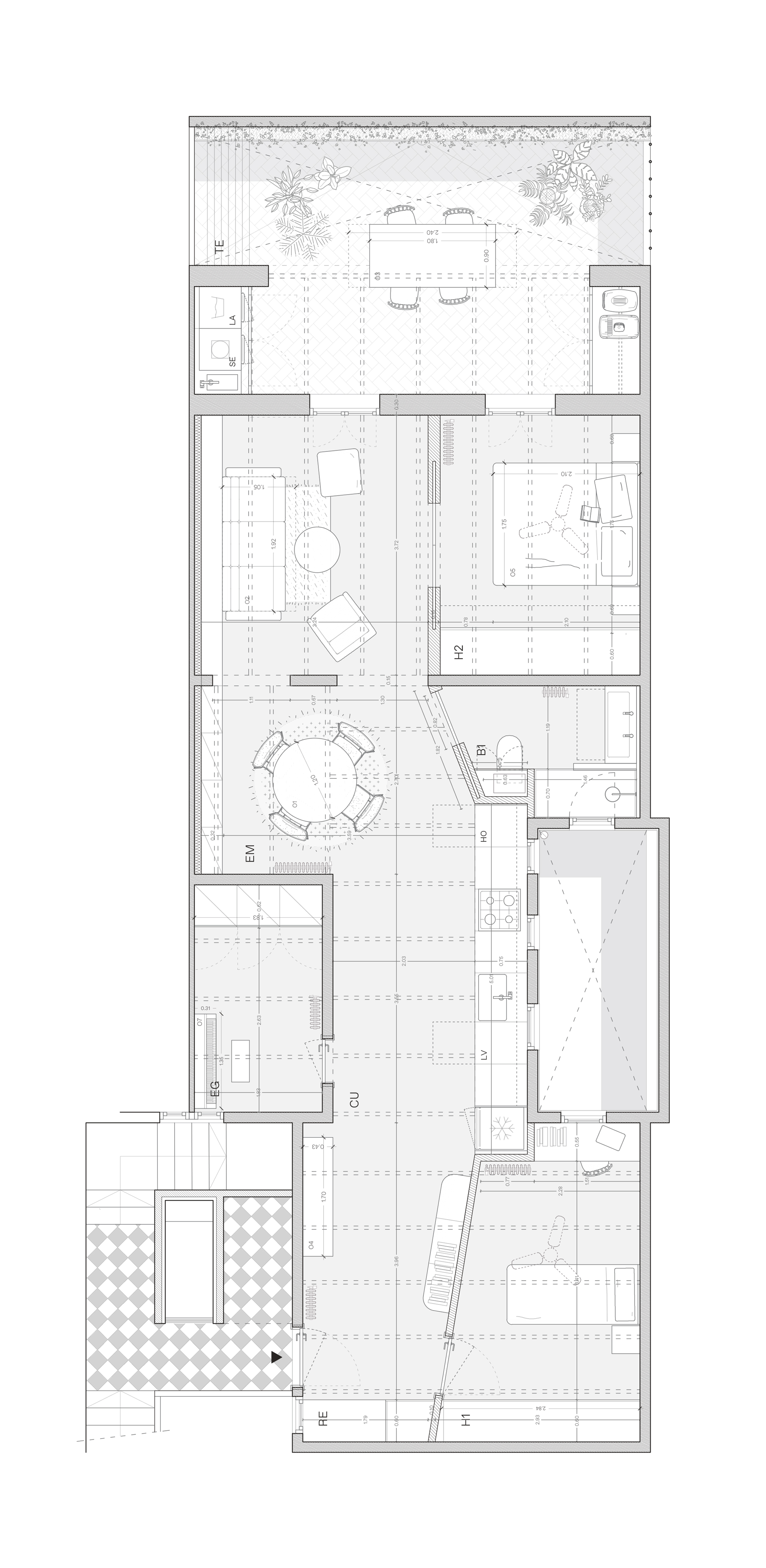
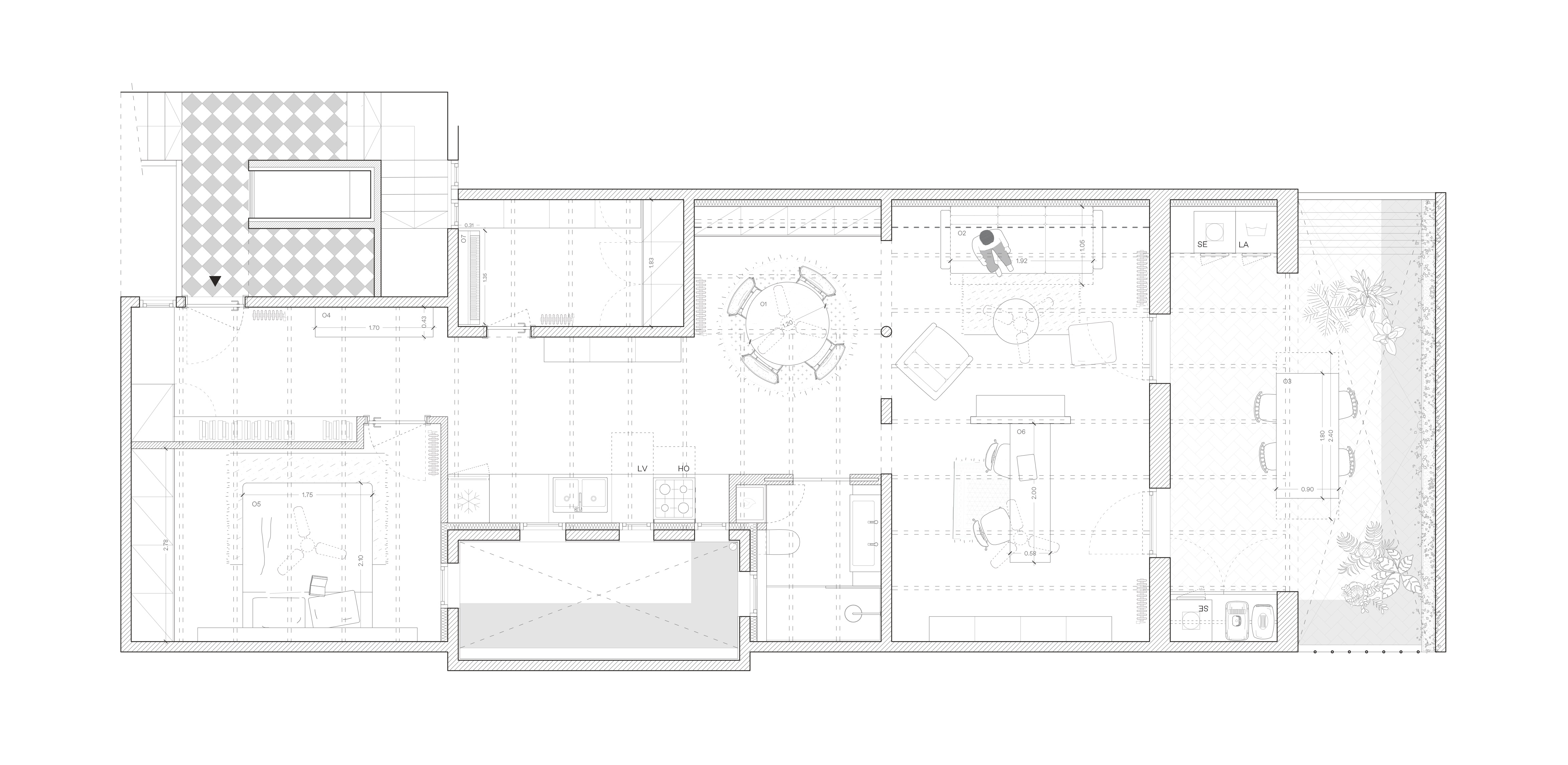
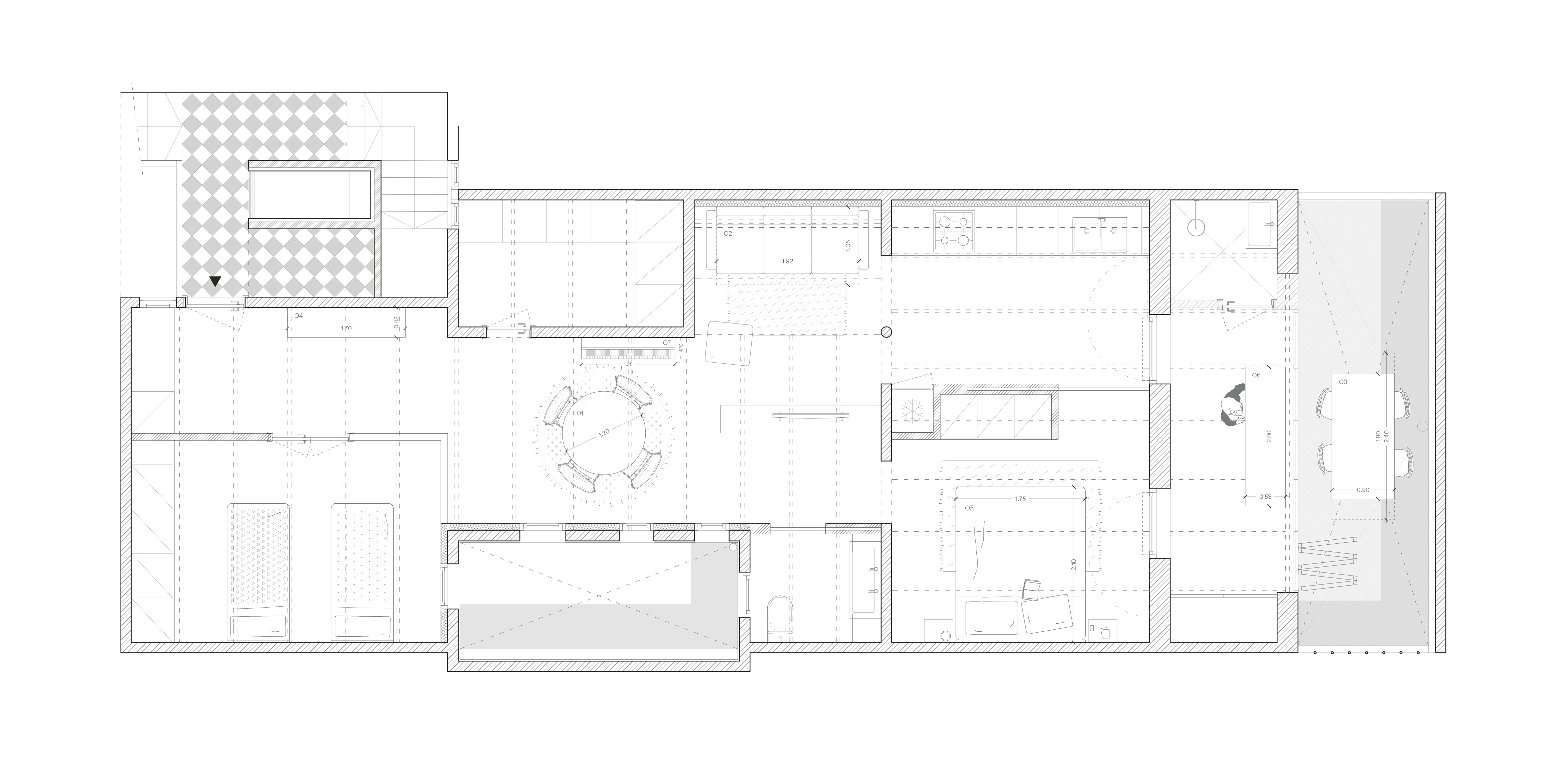
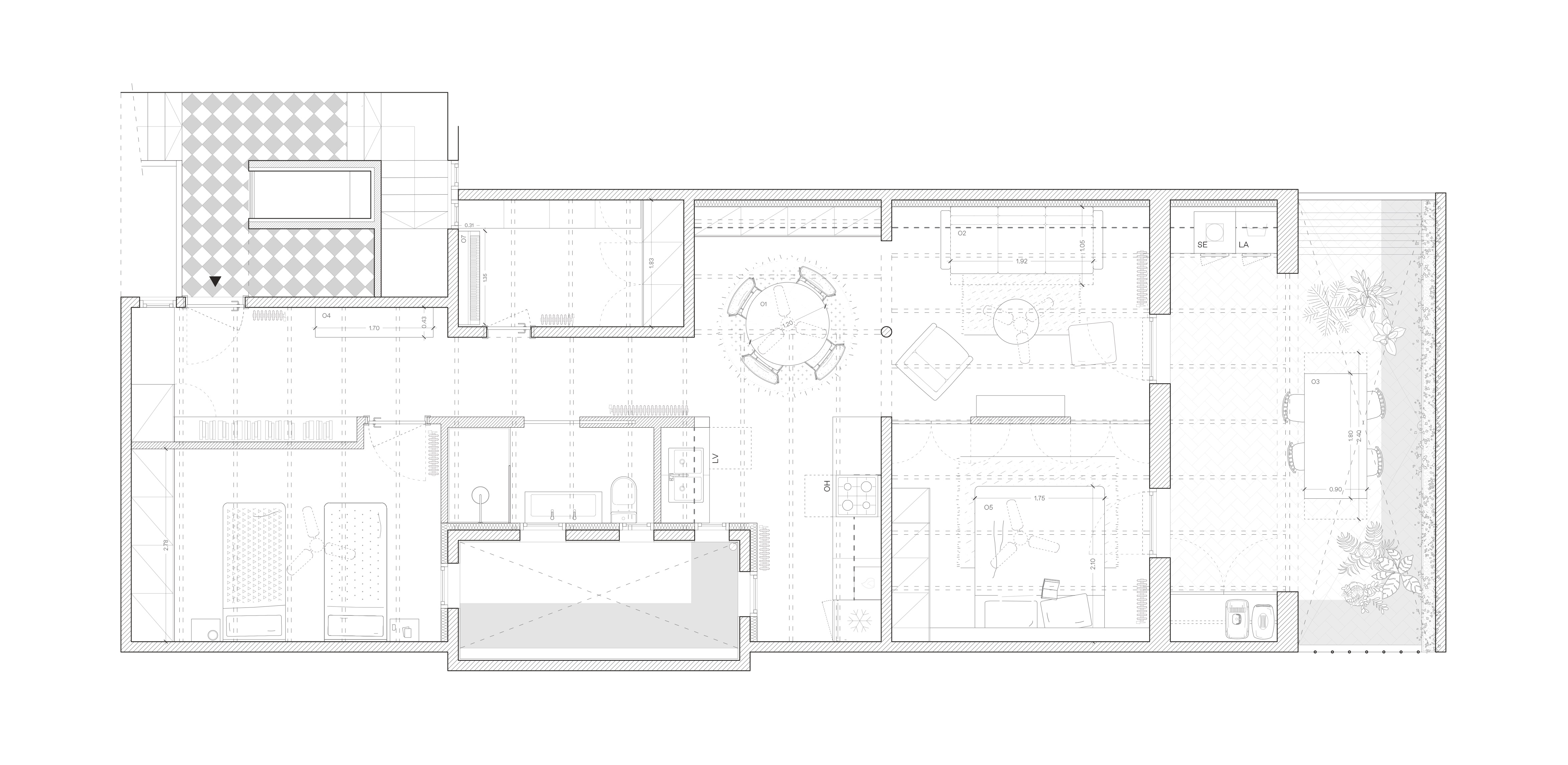
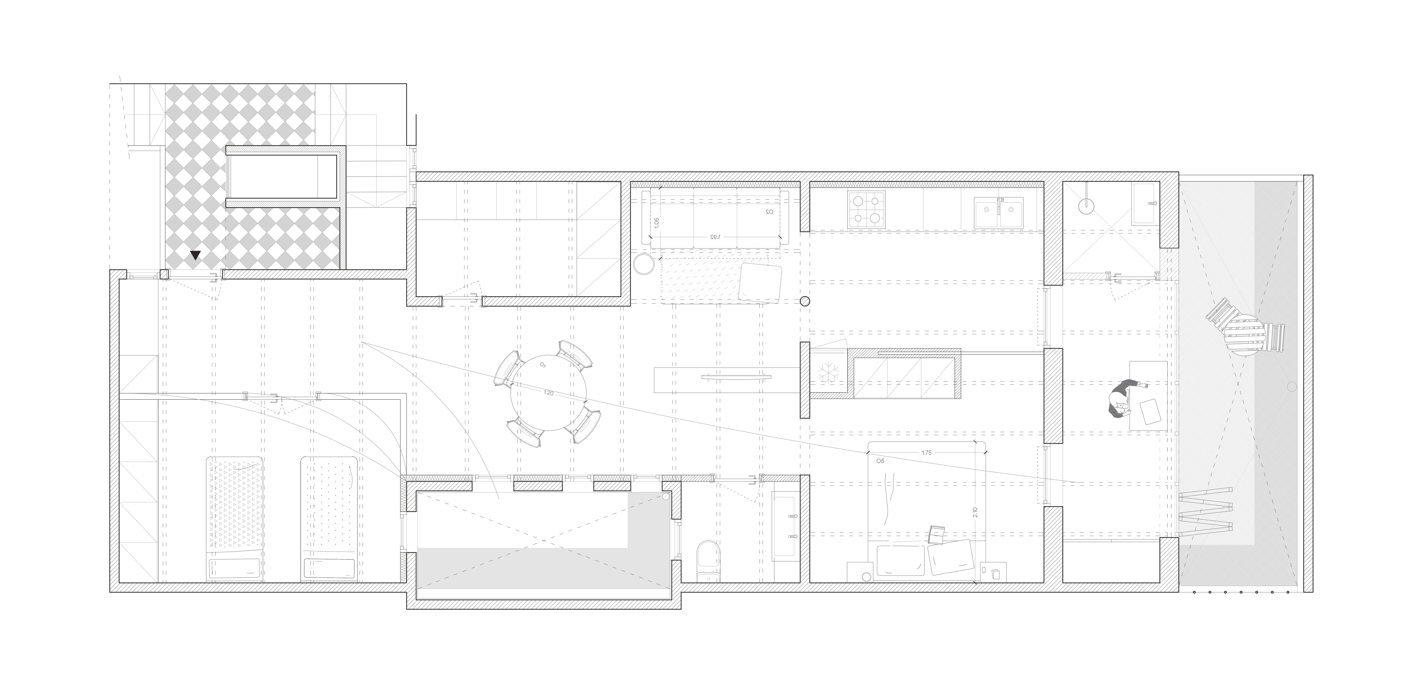
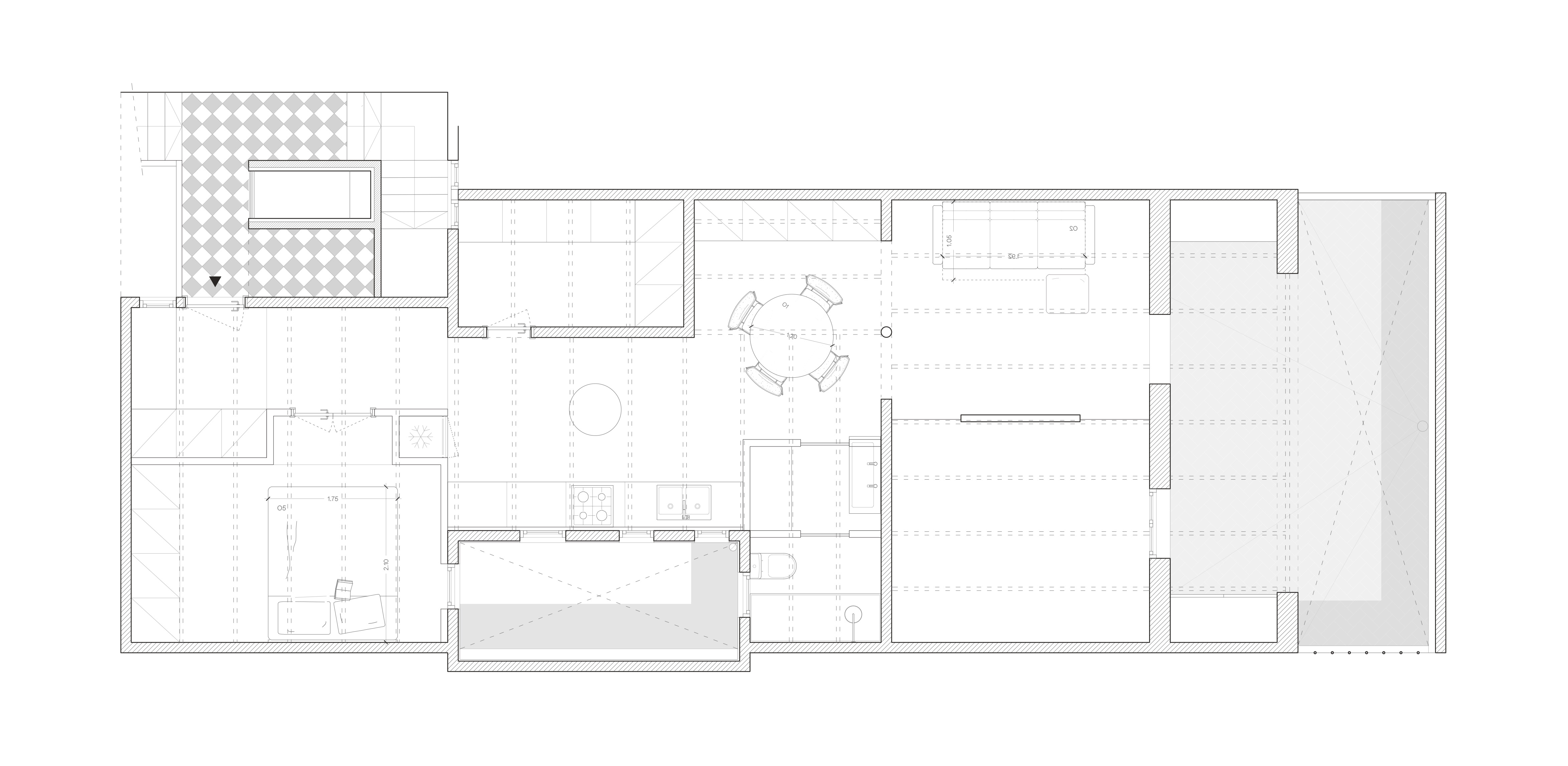
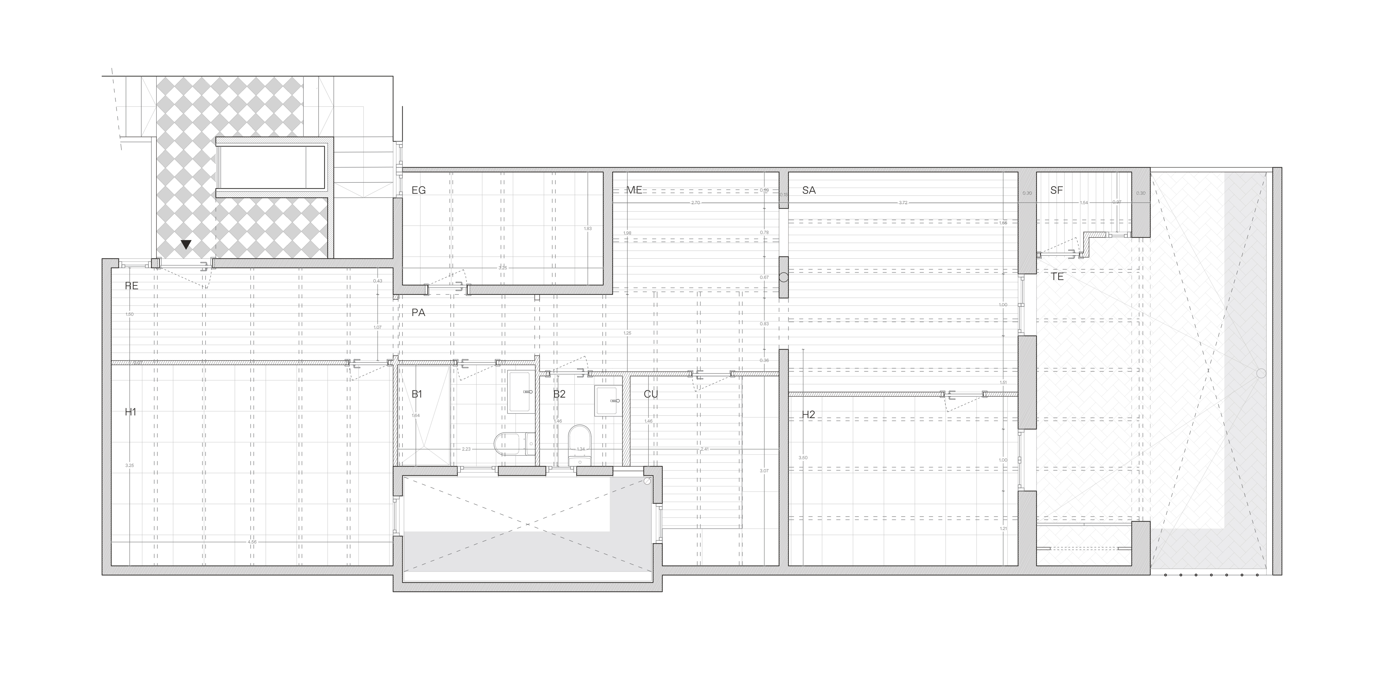
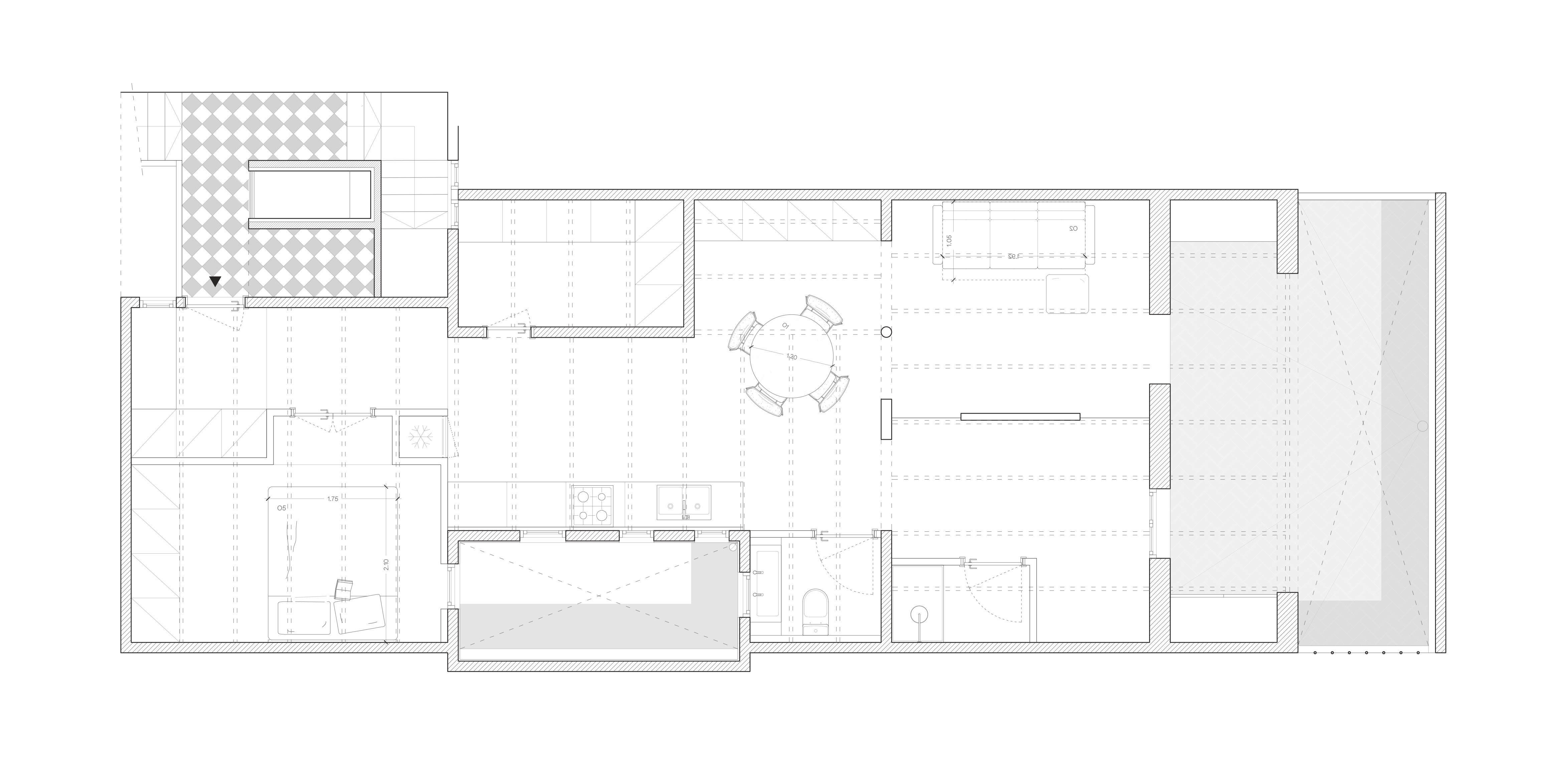
Estado Previo
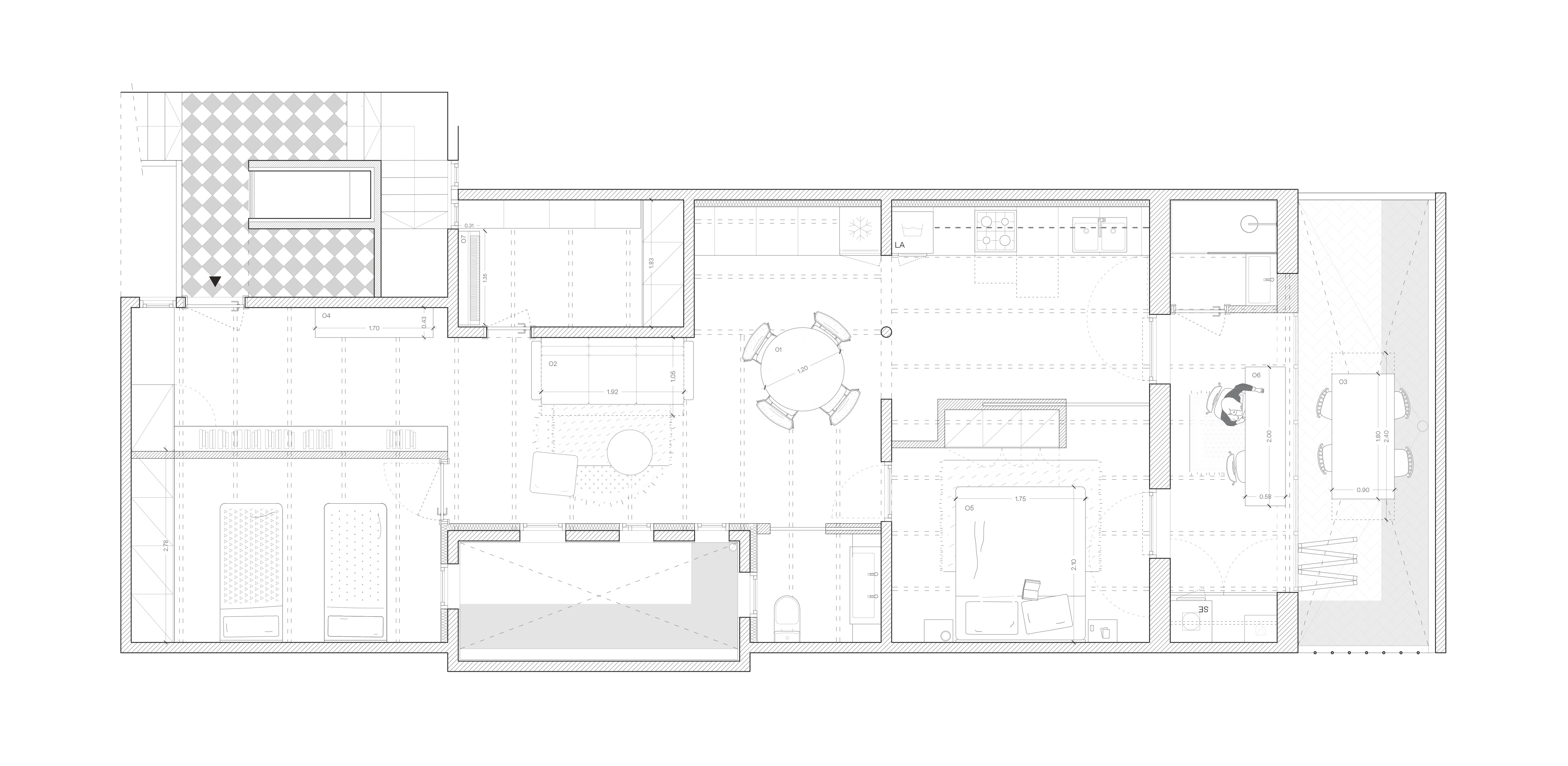
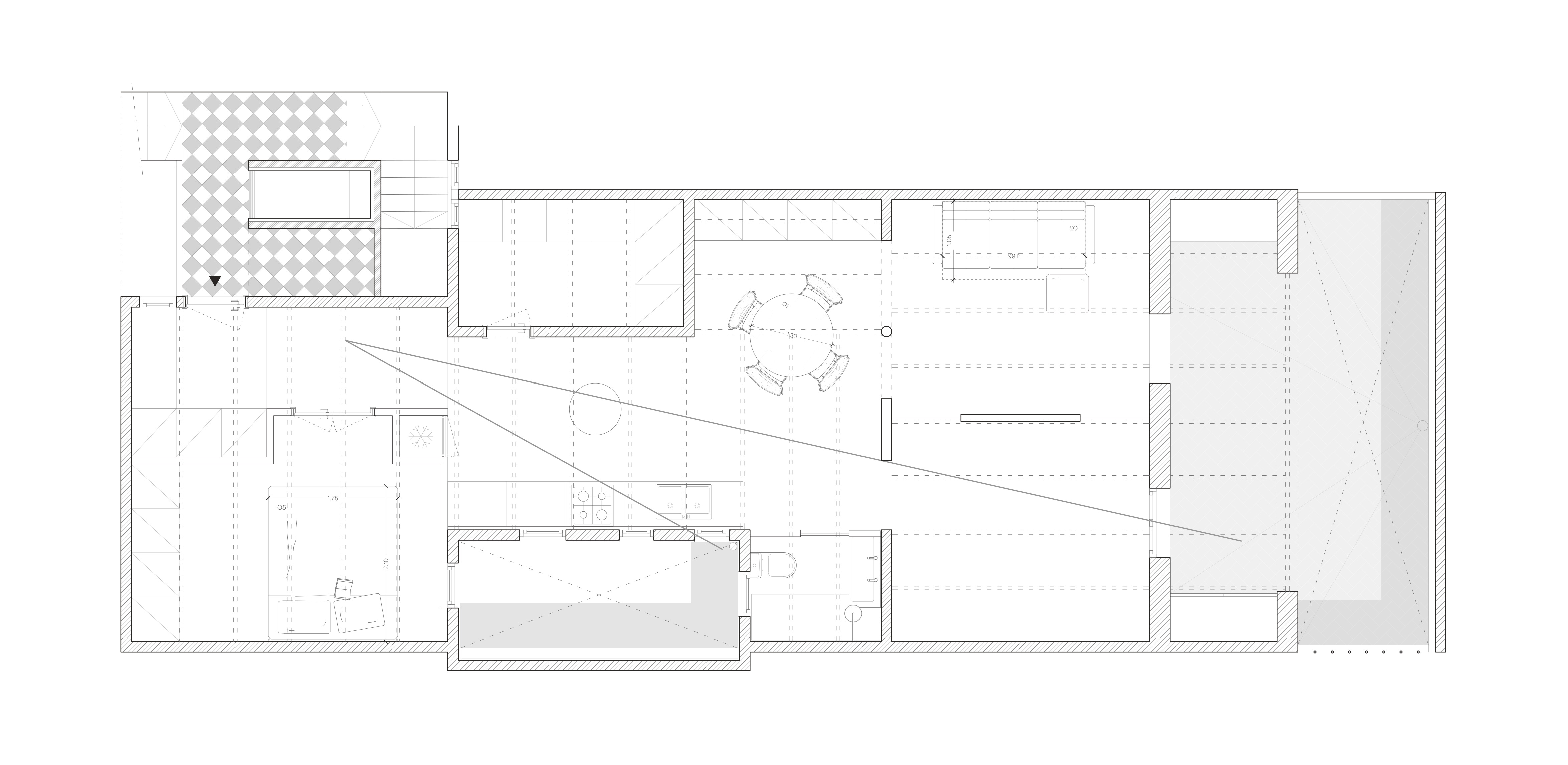
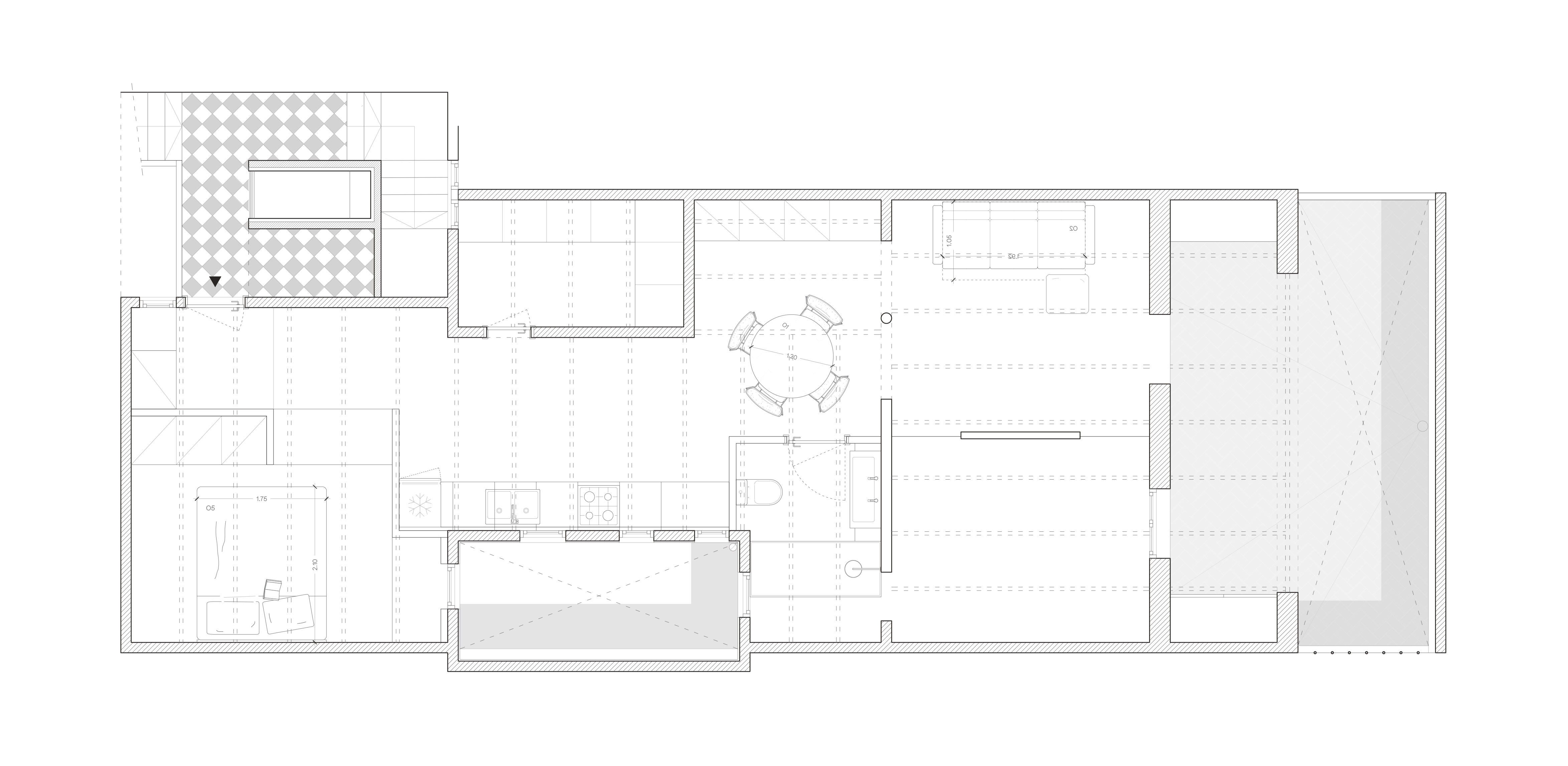
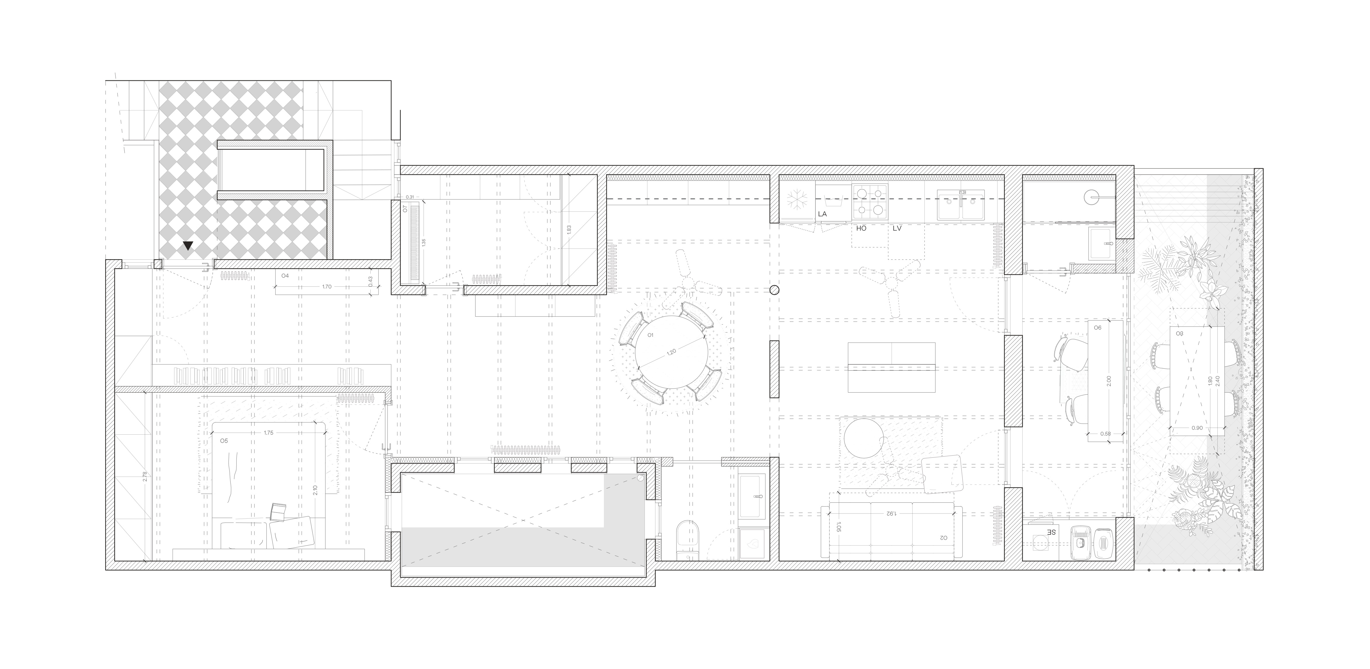
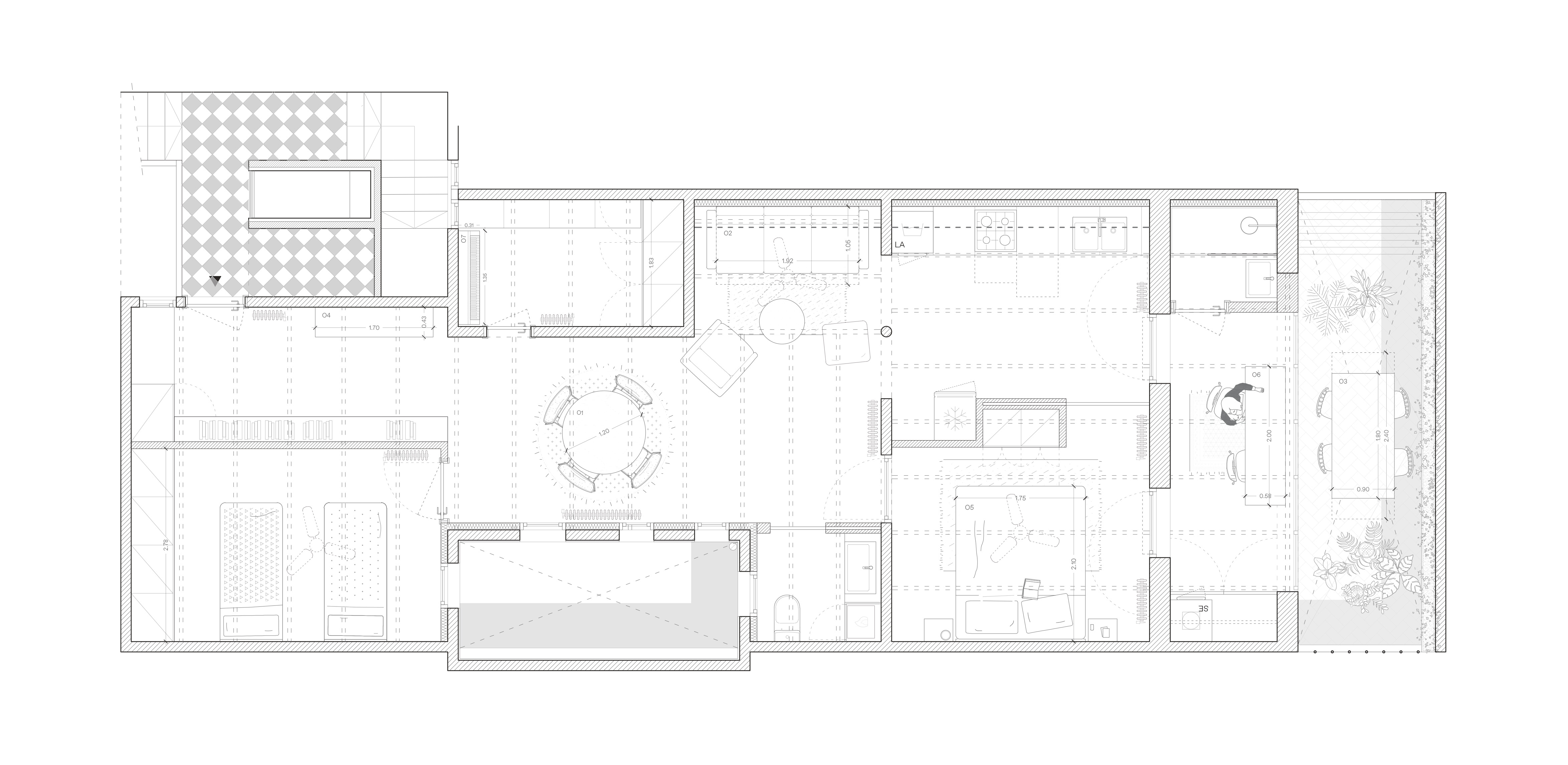
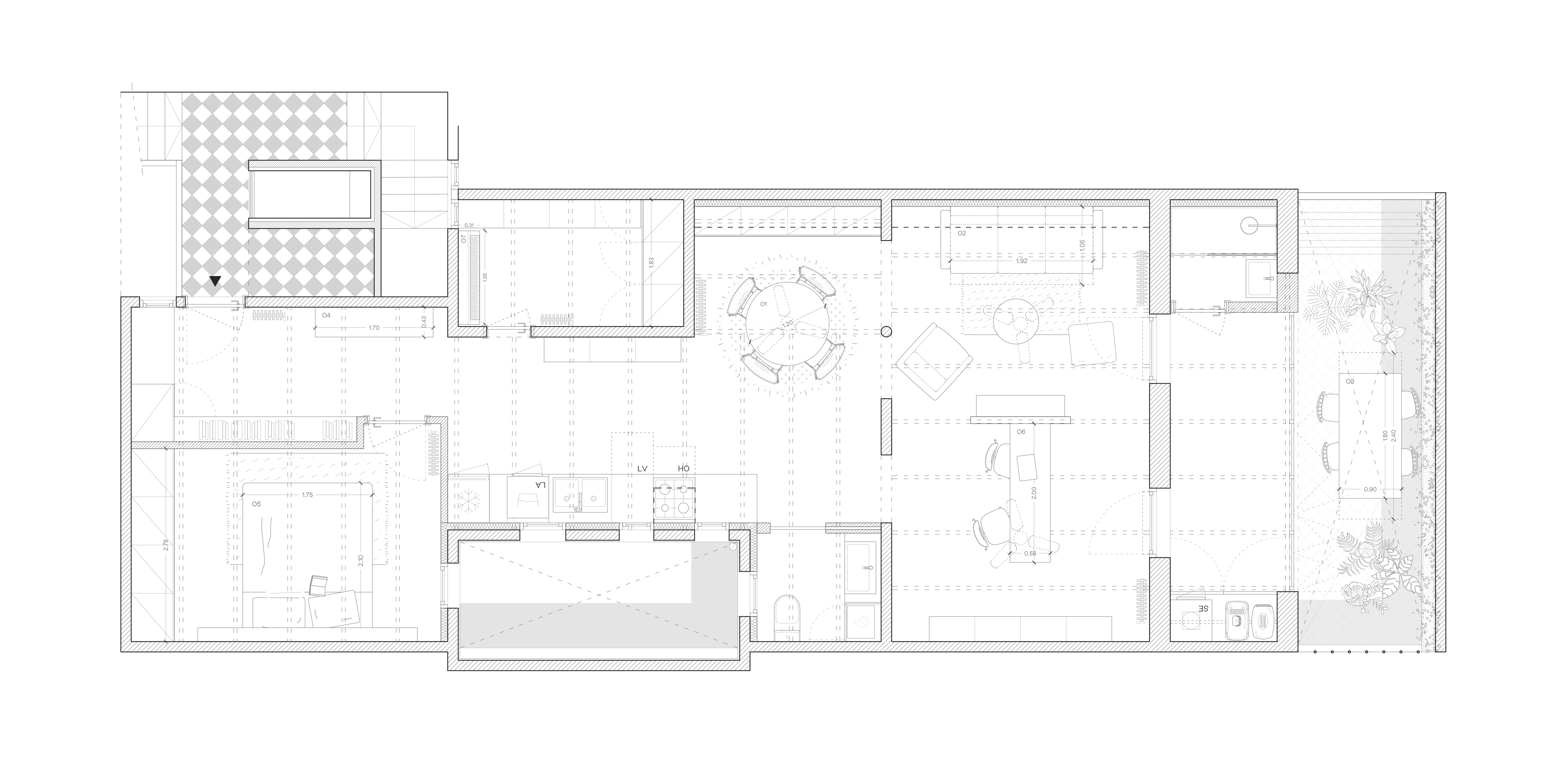
Propuesta
Entretanto,
la normativa urbanística declaraba que este lugar no era vivienda; sino
entresuelo. Estábamos ante un nuevo dilema: ¿los entresuelos solo sirven para
acceder a la vida de John Malkovich? Berta y Marc, en principio, no querían
saber nada de John Malkovich. Y menos de urbanismo. Con algo de suerte y algo
más de paciencia rescatamos del archivo histórico varios dibujos que permitían considerar este entresuelo como un lugar digno de ser vivido.



En
el Eixample de Barcelona es habitual que las fincas tengan entresuelo. Tan
habitual como escuchar a alguien decir que vive en un cuarto piso, quinto real.
¿Cuál
será el futuro de un término capaz de empujar un edificio entero hacia el
terreno de la ficción?
︎︎︎Publicado en
Interiores Minimalistas, 22 Sep 2025
Interiores Minimalistas, 22 Sep 2025
©2025
Legal&Cookies
Legal&Cookies