︎
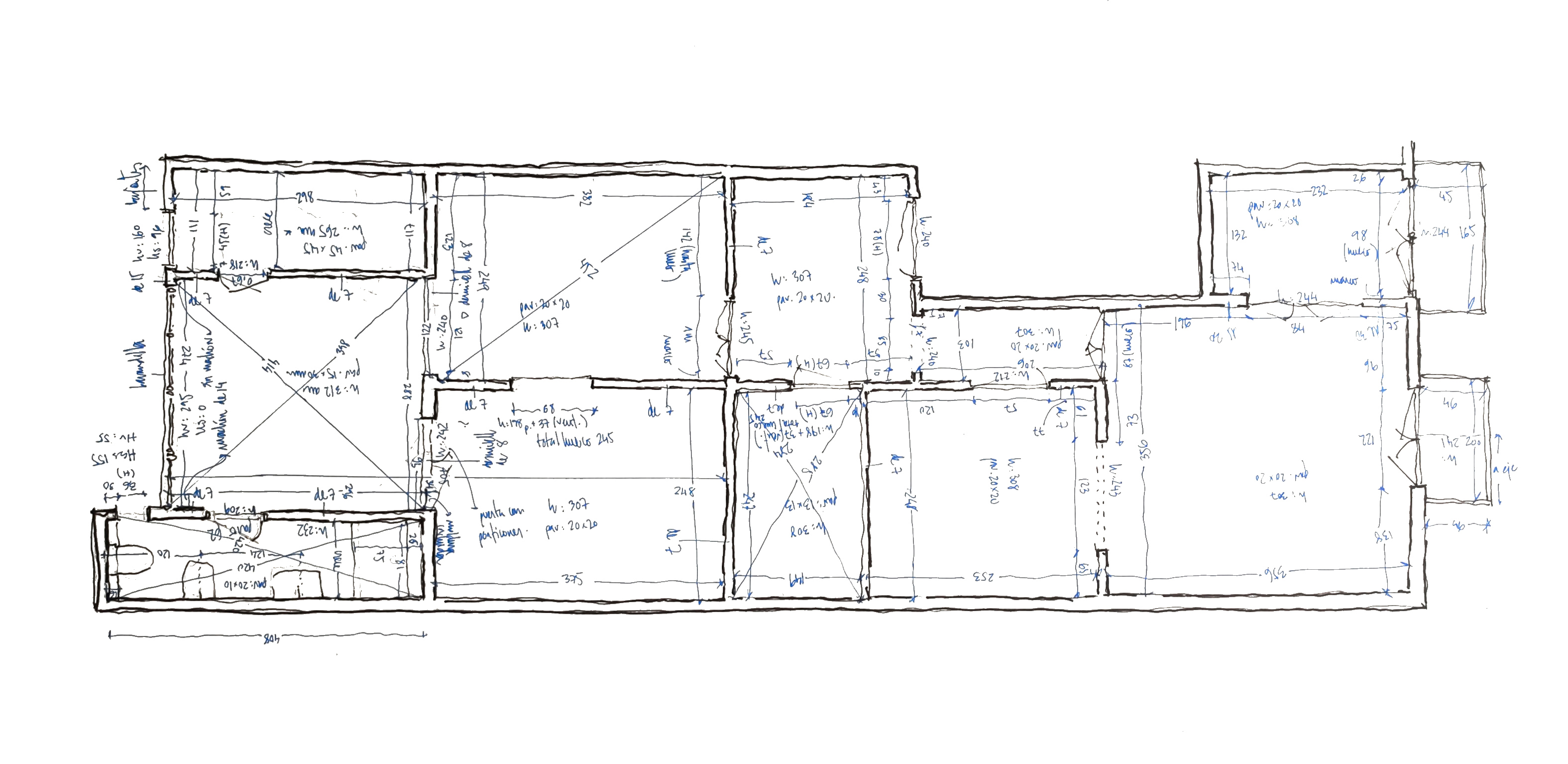
Reforma en Villarroel
Proceso
Reforma en Villarroel
Proceso
︎
︎
©2026
Legal&Cookies
©2026
Legal&Cookies